2i byt s loggiou, Kežmarok

 

Ponúkam vám na predaj dvojizbový byt s loggiou na sídlisku Juh v Kežmarku. Ide o priestranný byt na ideálnom piatom poschodí so skvelou orientáciou na západnú a východnú stranu. Má vymenené okná, avšak zvyšok bytu si vyžaduje rekonštrukciu - nový majiteľ si ho tak môže pretvoriť podľa vlastných predstáv. Súčasný stav bytu tak ako aj lokalita, v ktorej sa nachádza, predurčujú nehnuteľnosť na to stať sa výhodnou investíciou. Dvojizbové byty sú na trhu s prenájmami veľmi žiadané a predstavujú výborný pomer kúpnej ceny k výške prenájmu. Sídlisko je dobre prepojené s centrom mesta (cca 15 minút chôdze), pričom v tesnej blízkosti Petržalskej ulice sa nachádza aj nákupná zóna (Tesco, Kaufland, Action, lekáreň, atď.) a základná škola.

byt
- v osobnom vlastníctve
- na ulici Petržalská 5
- poschodie 5./8
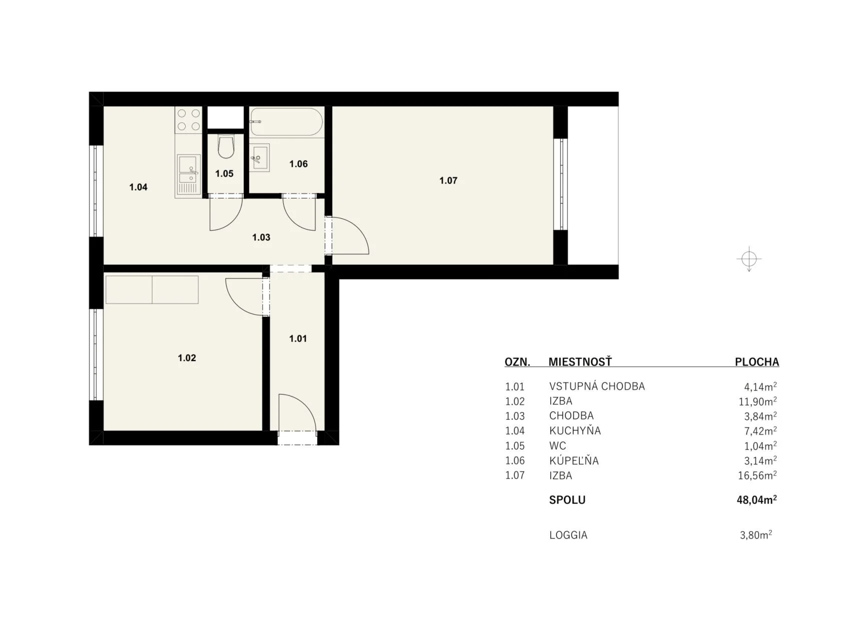
- celková úžitková plocha bytu 50,50 m² (vrátane pivnice)
- úžitková plocha bytu 48 m² + loggia 3,80 m²
- orientovaný na západnú a východnú stranu
- takmer v pôvodnom stave
- umakartové jadro, samostatná toaleta
- plávajúca podlaha, linoleum
- plastové okná (dvojsklo) s vertikálnymi žalúziami
- sadrové omietky, tapety
- centralizované vykurovanie
- latková pivnica na prízemí (cca 2,5 m²)
- k dispozícii tiež spoločná pivnica, resp. “kočikáreň”
- dispozícia bytu viď pôdorys
- predáva sa bez zariadenia

dispozícia bytu
- vstupná chodba
- spálňa (V)
- obývacia izba s loggiou (Z)
- kuchyňa (V)
- kúpeľňa s oddelenou toaletou

bytový dom
- kolaudovaný v roku 1976
- panelová konštrukcia
- osobný výťah pre 4 osoby
- elektrický vrátnik, “Dallas” čip
- rozvod optickej siete (Teatro)
- generálna oprava strechy v roku 2007
- menené stúpacie rozvody vody a plynu v roku 2017
- k nehnuteľnosti bol vytvorený energetický certifikát triedy C

najväčšie prednosti tejto ponuky
- nehnuteľnosť je bez tiarch
- dobre presvetlený, slnečný byt
- kompletná občianska vybavenosť
- bezproblémové parkovanie pred domom
- vysoký investičný potenciál

Prevádzkové náklady: 174,- €/ 1 osoba (aktuálny predpis mesačnej zálohovej úhrady).

Cena: 108.000,- €.

Cena za nehnuteľnosť zahŕňa kompletný právny a administratívny servis ako aj províziu realitnej kancelárie.

© Text a fotografie sú autorským dielom a majetkom spoločnosti KRISTÍNA ČULÍKOVÁ, s.r.o.

Pre viac informácií alebo záujem o obhliadku volajte na číslo: 0948 116 226.

 
Kristína Čulíková